
Mezzanine System
Our mezzanine solutions feature high-strength deck sheets supported by joists and primary beams. Optional intermediate columns can be added for increased loads. The ribbed, embossed steel deck enhances grip and eliminates the need for traditional formwork.

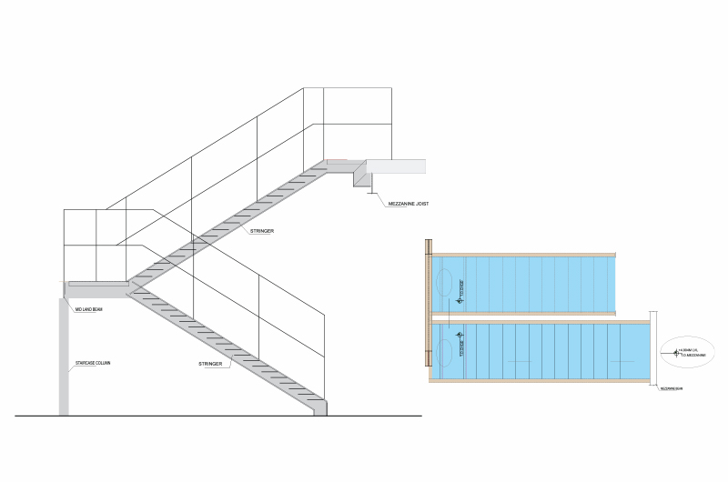
Staircase
Avlon's steel staircases come in various forms and finishes, engineered for stability and space efficiency. With precise welding and step alignment, our staircases are as durable as they are stylish - crafted using structural steel in shapes like I-beams, tubes, and channels for a tailored fit in any application.
