A V L O N

Screwdown System

Avlon Structure Pvt. Ltd.'s roofing system is engineered for durability, strength, and long-term performance in demanding environments. We use high-quality steel panels available in 0.5 mm and 0.6 mm thickness, each offering a minimum yield strength of 345 MPa for superior load-bearing capacity and structural integrity.

image

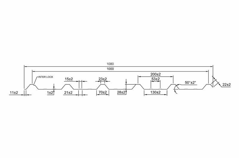
HI-RIB Sheet Profile Strength Meets Versatility

Our metal cladding solutions serve multiple roles - from external sheeting to internal partitions and facades. Choose from single-skin or advanced insulated systems, all crafted for thermal, acoustic, and aesthetic value.

Our panels are available in Galvalume and Galvanised substrates and finished with coatings such as Architectural Polyester and Fluoropolymer, which ensure durability and design flexibility. Matched accessories like trims, flashings, and fasteners provide a seamless, uniform finish.

gallery image
gallery image

Roof & Wall Cladding SRS/SWS Panels

Our SRS/SWS systems feature profiled panels designed for high structural efficiency. Suitable for roof pitches as low as 1:10, these panels are fixed using self-drilling fasteners and support a variety of insulation configurations, including curved roofing profiles.

Deck Sheet Profile Strong and Lightweight

Our trapezoidal deck sheets are ideal for composite floors, offering excellent shear performance with minimal material use. The embossed design ensures strong bonding with concrete, making them suitable for efficient, modern construction.

gallery image